Appartement 3pièces Villeurbanne 57 m² VILLEURBANNE Grand Clément
Villeurbanne - (69100)
Réf. 11529
140 000 €
Les honoraires sont à la charge
du vendeur
Surface
57 m²
Chambre(s)
2
Secteur Grand-Clément, LIONROSE vous propose en EXCLUSIVITE un appartement T3 de 57 m² au 4ème étage sur 6 d'une résidence bientôt entièrement rénovée !
Idéal investisseur ou petit budget.
!! Rénovation énergétique déjà votée !!
Vont être réalisées une isolation par l'extérieur, la façade, la pose de volets BSO ainsi qu'une isolation des toitures terrasses. Vont être remplacées la chaudière gaz et la ventilation. Les parties communes vont également être entièrement rénovées.
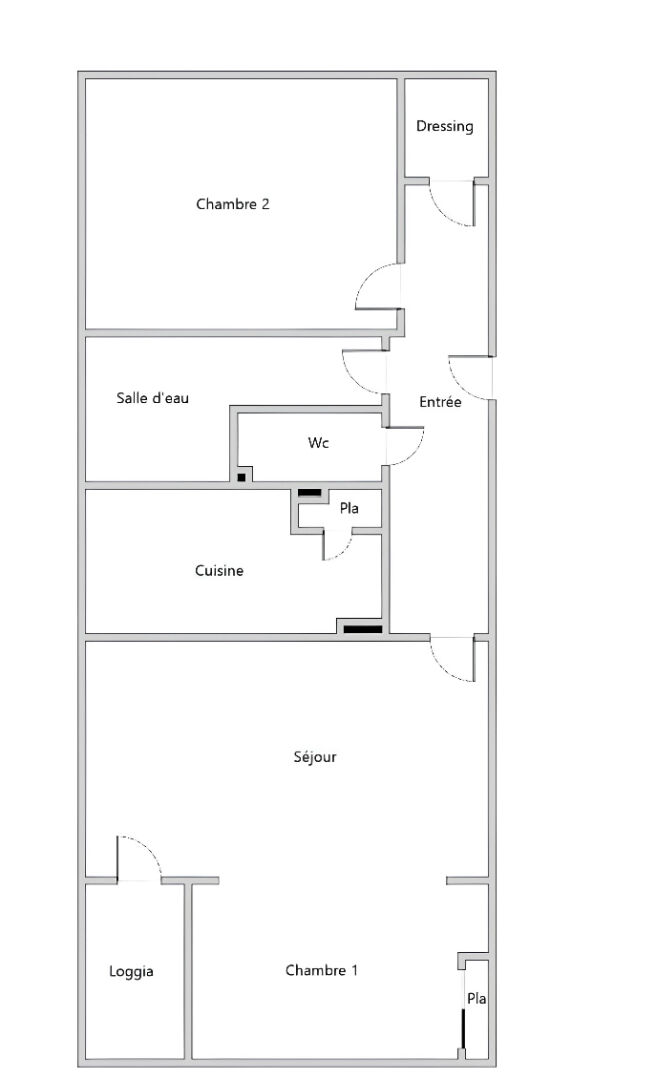
L'appartement, lumineux et orienté plein Sud, se compose d'un hall d'entrée, un séjour, une cuisine indépendante, deux chambres (dont une pouvant servir à agrandir la partie séjour), une salle d'eau et un WC indépendant.
Une loggia accessible depuis l'une des chambres et du séjour est également présent.
Une cave complète ce bien et la résidence propose un parking fermé et sécurisé pour le stationnement des véhicules.
Idéalement situé à proximité des transports en communs, des écoles et commerces, l'appartement nécessite quelques travaux de rafraichissement.
Une visite virtuelle du bien est disponible sur demande et dans un souci de toujours mieux vous servir, chez LIONROSE, l'accueil téléphonique, c'est du lundi au samedi de 9h à 19h. Contact RT
Copropriété de 313 lots - dont 141 lots habitation. (Pas de procédure en cours).
Charges annuelles : 880 euros.
Montant minimum estimé des dépenses annuelles d’énergie pour un usage standard : 1 530 €
Montant maximum estimé des dépenses annuelles d’énergie pour un usage standard : 2 110 €
Montant maximum estimé des dépenses annuelles d’énergie pour un usage standard : 2 110 €
Classe énergie
231 à 330
E
GES
50 à 70
E
Surface
57m²
Chambre(s)
2
Année
1959
Ascenseur
1
Salle de douche
1
Cave
1
Terrasse
1
Étage
4
Contactez-nous

AGENCE
Chassieu
Chassieu
2 Rue Louis Pergaud
69680 Chassieu
Année
1959
Ascenseur
1
Salle de douche
1
Cave
1
Terrasse
1
Étage
4
Secteur Grand-Clément, LIONROSE vous propose en EXCLUSIVITE un appartement T3 de 57 m² au 4ème étage sur 6 d'une résidence bientôt entièrement rénovée !
Idéal investisseur ou petit budget.
!! Rénovation énergétique déjà votée !!
Vont être réalisées une isolation par l'extérieur, la façade, la pose de volets BSO ainsi qu'une isolation des toitures terrasses. Vont être remplacées la chaudière gaz et la ventilation. Les parties communes vont également être entièrement rénovées.
L'appartement, lumineux et orienté plein Sud, se compose d'un hall d'entrée, un séjour, une cuisine indépendante, deux chambres (dont une pouvant servir à agrandir la partie séjour), une salle d'eau et un WC indépendant.
Une loggia accessible depuis l'une des chambres et du séjour est également présent.
Une cave complète ce bien et la résidence propose un parking fermé et sécurisé pour le stationnement des véhicules.
Idéalement situé à proximité des transports en communs, des écoles et commerces, l'appartement nécessite quelques travaux de rafraichissement.
Une visite virtuelle du bien est disponible sur demande et dans un souci de toujours mieux vous servir, chez LIONROSE, l'accueil téléphonique, c'est du lundi au samedi de 9h à 19h. Contact RT
Copropriété de 313 lots - dont 141 lots habitation. (Pas de procédure en cours).
Charges annuelles : 880 euros.
Montant minimum estimé des dépenses annuelles d’énergie pour un usage standard : 1 530 €
Montant maximum estimé des dépenses annuelles d’énergie pour un usage standard : 2 110 €
Montant maximum estimé des dépenses annuelles d’énergie pour un usage standard : 2 110 €








